Charakterystyka inwestycji
Trakt Królewski Etap V – blok D
- budynek D – 55 mieszkań,
- komórki lokatorskie,
- 27 miejsc w podziemnej hali garażowej,
- miejsca parkingowe zewnętrzne,
- wysoka jakość wykonania i materiałów,
- duże parkingi dla gości,
- atrakcyjna lokalizacja z nową ulicą.
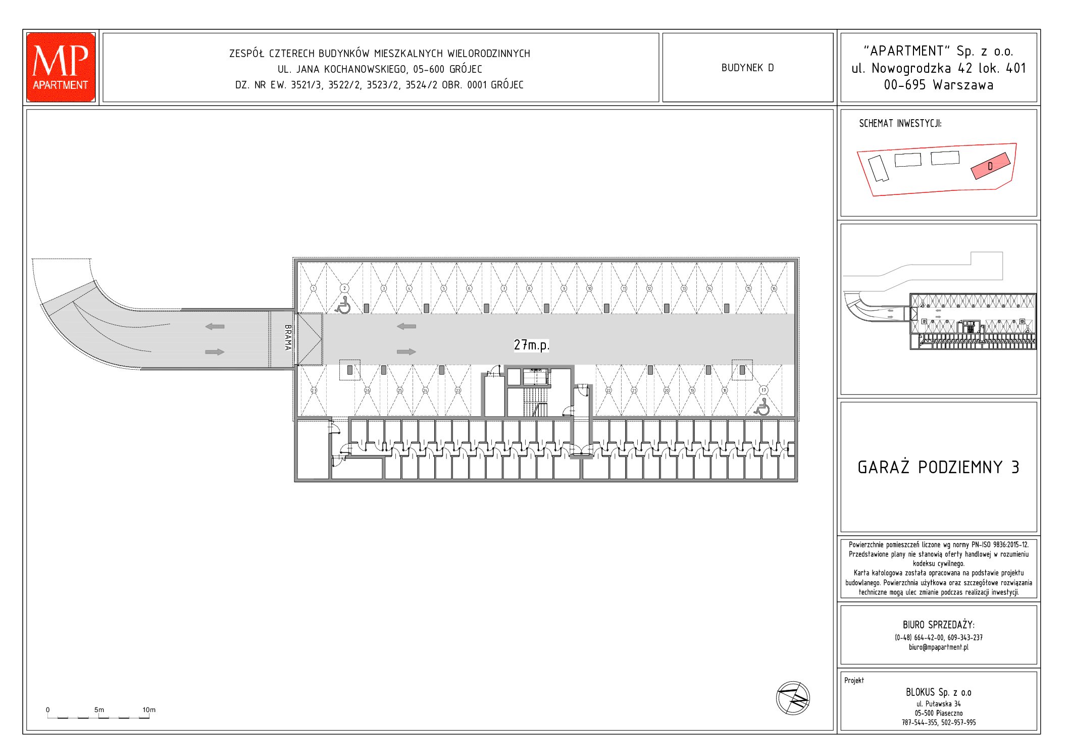
ETAP V – Rzuty budynku D
(kliknij obrazek, aby pobrać PDF)

Garaż podziemny

Parking naziemny

Komórki lokatorskie

Kondygnacja I

Kondygnacja II

Kondygnacja III

Kondygnacja IV
Sprawdź dostępność mieszkań budynek D
Sprawdź dostępność mieszkań w nowym etapie osiedla Trakt Królewski V – Budynek D, oferujące nowoczesne mieszkania z dostępem do niskich kosztów utrzymania. Bogata infrastruktura osiedla zapewnia komfort życia, a zrównoważony rozwój wspierany jest przez zastosowanie fotowoltaiki. To inwestycja z myślą o przyszłości, która zapewnia mieszkańcom atrakcyjną lokalizację i nowoczesne EKO mieszkania blisko Grójca
Ostatnia aktualizacja cen: 12.12.2025 r.
Do pobrania: Prospekt informacyjny: Trakt Królewski V
Historia zmian cen: Sprawdź historię cen
Można dodatkowo dokupić:
- komórki – 10 000 zł
- miejsce postojowe w garażu – 35 000 zł
- miejsce postojowe zewnętrzne – 20 000 zł
Lokalizacja
Trakt Królewski ETAP V
Inwestor
APARTMENT Sp. z o.o. jest spółką założoną przez właściciela i założyciela firmy – Usługi Ogólnobudowlane Mirosław Piotr Pochelski, która na rynku nieruchomości prężnie działa już od ponad 20 lat. Od początku firma zajmowała się przede wszystkim budownictwem, realizując przy tym również projekty związane z handlem i transportem międzynarodowym, które to doskonale uzupełniały jej ofertę. Firma pod powyższą nazwą wykonała szereg inwestycji na terenie Warszawy, Grójca i okolic.
Dlaczego warto kupić mieszkanie u nas?
- Umowa Deweloperska, łatwy kredyt, 0% ryzyka
- wysoka jakość wykonania i materiałów
- duże parkingi dla gości,
- atrakcyjna lokalizacja z nowo projektowaną ulicą administrowaną przez UG.
Co nas wyróżnia?
Wieloletnie doświadczenie i pewność, że dbamy o możliwie każdy szczegół w realizowanej inwestycji.

